❮ Back to Blog List
1st August 2019

Self build supported by inspector

A recent appeal decision found that the need to meet self-build and custom-build demand outweighed conflict with the local development plan. The economic, social and environmental benefits of 30 self-build plots justified a departure from the plan, in a decision that has implications for many other appeals.

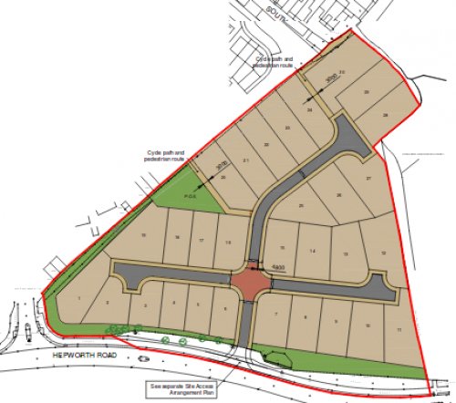
Custom-build and self-build plots outside a town boundary


In an appeal against West Leicestershire District Council, Inspector Harold Stephens granted permission for 30 self-build serviced plots at Hepworth Road, Woodville, Swadlincote DE11 7on a 1.9 hectare triangular site outside the town's development boundary. The Local Plan treated the site as 'countryside' in which this type of residential development would be refused.

The application was to provide 30 self-build plots ranging in size from 290 sq. m to 597sq. m. This was an outline planning application that included the principle of development, access and layout. At a later stage, individual plot owners would submit 'reserved matters' applications for the specific appearance and design details of the house they wished to build on their respective plots. Details can be found at https://www.nwleics.gov.uk/pages/view_planning_applications, application reference 16/01191/OUTM.

Counting self-build plots in a local authority area


The Council confirmed there were 54 individuals on their Self-Build and Custom Housebuilding Register. It sought to claim that 133 single plot dwellings that have been granted planning consent since 2016 would meet the need for self-build plots. Inspector Harold Stephens did not accept this because the Council could only show that 4 of these planning consents had any mechanism to limit their development to self-builders.

Self-build secured through s106


The appeal proposal had a section 106 agreement to ensure that the proposed dwellings would meet the statutory definition of self-build and custom housebuilding. The Inspector noted the absence of any similar provisions for the single plots already granted planing permission, and decided that single plots could not be counted as contributing towards the delivery of self-build and custom housebuilding in the District if they did not have such a mechanism.

This appeal decision has implications for how future appeal Inspectors will count plots and whether local planning authorities can demonstrate they have enough development permissions to meet the identified demand for self-build plots.

Legal requirement to meet need for self-build


Under section 1 of the Self Build and Custom Housebuilding Act 2015 and the associated Self-build and Custom Housebuilding Regulations 2016, local planning authorities (LPAs) are required to keep a register of those seeking to acquire serviced plots in the area for their own self-build and custom house building. They must provide enough suitable development permissions to meet the identified demand within three years. Full details can be found in the National Planning Practice Guidance at https://www.gov.uk/guidance/self-build-and-custom-housebuilding.

The first base period for measuring demand for self-build is 30th October 2016, with LPAs to provide enough plots within three years. This means from October 2019 each LPA will have a legal duty to provide enough self-build plots to meet the demand for self-build plots registered for the base period 3 years previously. We can expect a great many more successful appeals as local planning authorities wake up to this legal requirement.

Appeal ref APP/G2435/W/18/3214451

self_build.jpg

To find appeals that are relevant to you, use the search on our Home page.